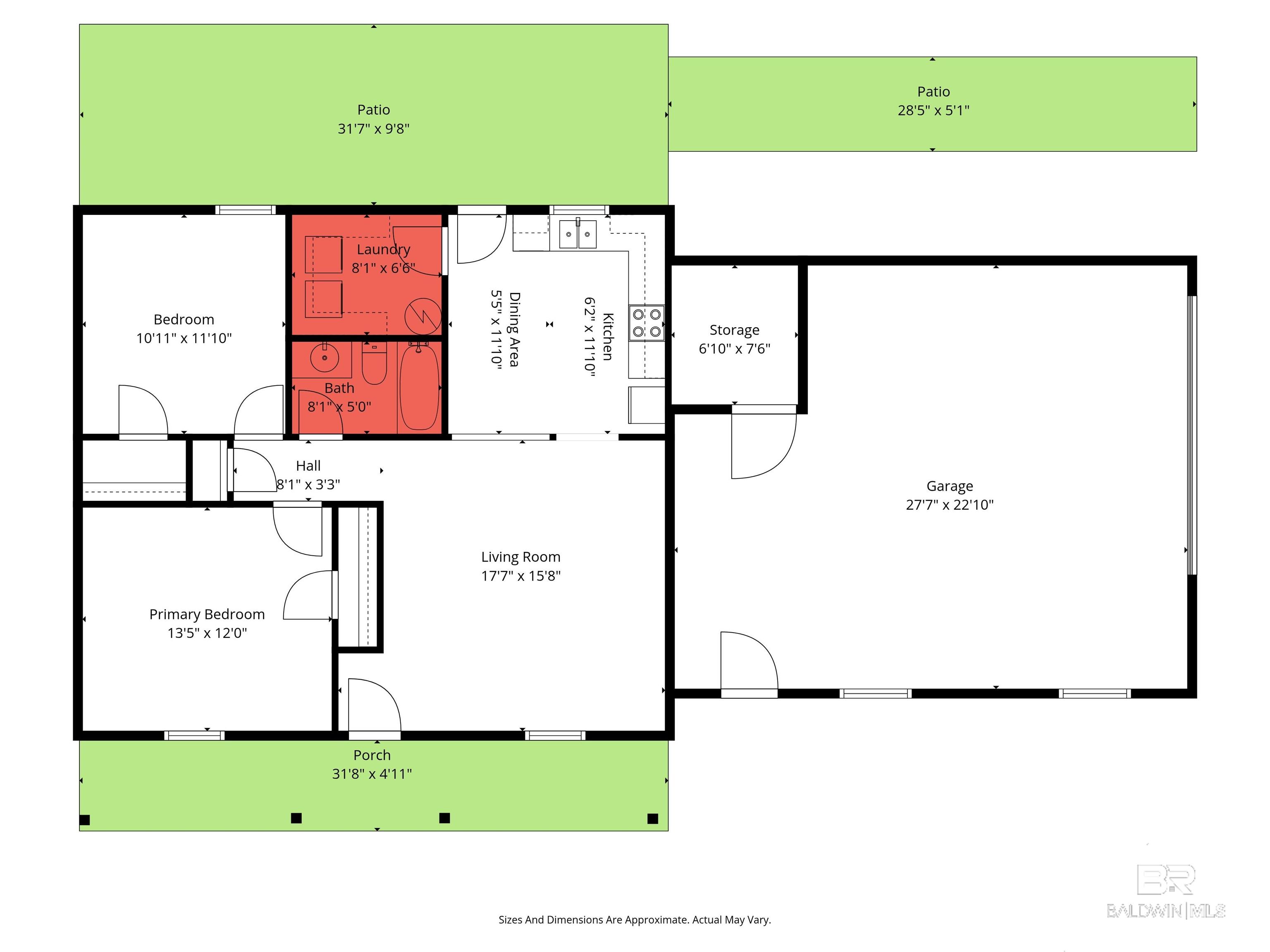
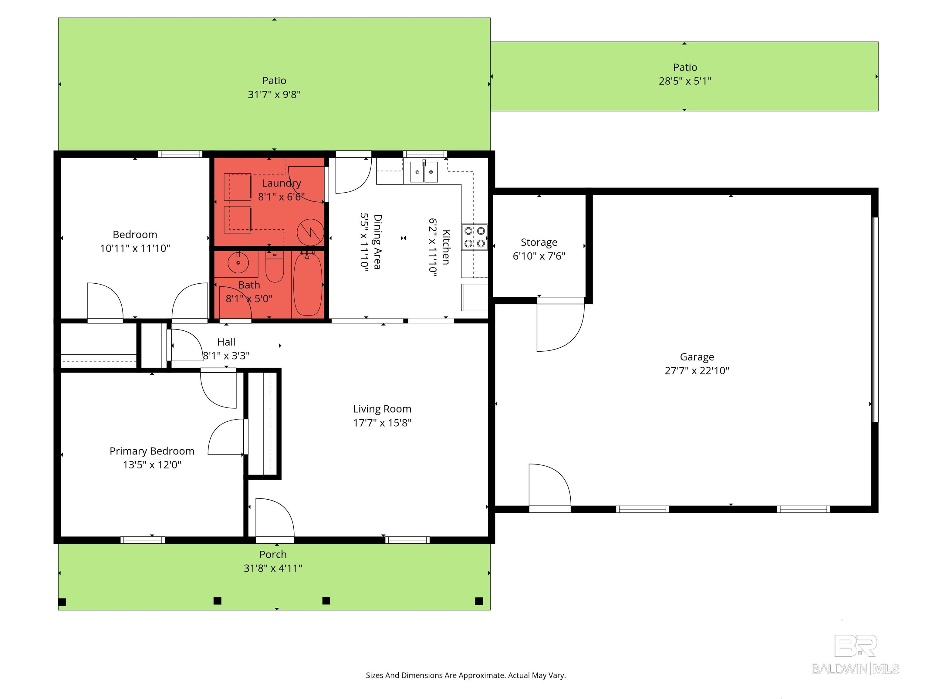
Set far back from the road on nearly an acre in Mobile, this all-brick property offers the kind of space and freedom that’s becoming harder to find within the city. With no carpet and durable flooring throughout, the home features tile in the main living areas and vinyl flooring in the bedrooms for easy maintenance and everyday living. The open-concept main living space allows for a clear view from the kitchen into the living room, creating a functional layout for daily life and gatherings. Plantation shutters are installed throughout the home, adding character while allowing for easy control of natural light. Originally designed with a carport, the space has been converted into a large garage, offering additional storage, workspace, or room for vehicles. The HVAC system is only 4 years old. Nearly an acre of land provides the space and flexibility you are searching for but rarely find so close to the city. The setting feels tucked away and private while still being just minutes from grocery stores, shopping, dining, and other everyday conveniences in Mobile. Buyer to verify all information during due diligence.